* Bungalow * ruhige Lage * 7 Zimmer * gepflegter Garten * Garage * Carport * Terrasse *
Beschreibung:
Dieser Bungalow mit einem Grundstück von ca. 1.104 qm befindet sich in ruhiger Lage in Filsum. Mit insgesamt 7 Zimmern bietet dieses Objekt viel Platz. Von dem großzügigen Wohnzimmer und Esszimmer gelangen Sie auf die überdachte Terrasse und in den gepflegten Garten. Das Badezimmer verfügt über eine Dusche, eine Badewanne und zwei Waschbecken. Zudem ist ein Gäste-WC vorhanden. Ein Highlight ist die Saune im Keller. Zu dem Objekt gehört zudem eine Garage mit Werkstatt und Geräteschuppen und ein verschließbares Carport.Raumaufteilung:
Erdgeschoss:
Diele: ca. 20,92 qm
Gäste-WC: ca. 2,04 qm
Zimmer / Büro 1: ca. 10,98 qm
Esszimmer: ca. 18,85 qm
Wohnzimmer: ca. 38,41 qm
Küche: ca. 12,91 qm
Flur: ca. 10,71 qm
Ausstellung/Zimmer: ca. 11,78 qm
Gästezimmer: ca. 11,80 qm
Badezimmer: ca. 10,44 qm
Zimmer / Büro 2: ca. 14,27 qm
Schlafzimmer: ca. 19,59 qm
Waschküche: ca. 9,02 qm
Flur zur Garage und zum Keller: ca. 3,34 qm
Keller:
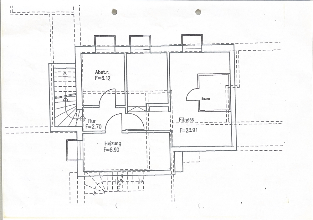
Flur: ca. 2,70 qm
Abstellraum: ca. 6,12 qm
Fitnessraum/Raum mit Sauna: ca. 23,91 qm
Heizungsraum: ca. 8,90 qm
Garage: ca. 36,76 qm
Werkstatt: ca. 7,06 qm
Geräteschuppen: ca. 7,53 qm
Carport: ca. 21,19 qm
Abstellraum am Carport: ca. 6,52 qm
Angaben zum Energieausweis:
- Art: Bedarfsausweis
- gültig bis: 23.08.2034
- Endenergiebedarf: 245,9 kWh (m²*a)
- Baujahr lt. Energieausweis: 1974
- Wesentlicher Energieträger: Erdgas LL
- Baujahr Heizung: 2021
- Energieeffizienzklasse: G
Lagebeschreibung:
Filsum ist eine ostfriesische Gemeinde im Landkreis Leer in Niedersachsen, die sich durch ihre ruhige und ländliche Lage auszeichnet. Der Ort liegt ca. 30 km von der Grenze zu den Niederlanden und 50 km von der Nordseeküste entfernt. Filsum ist ein typisch ostfriesisches Dorf mit vielen historischen und landschaftlichen Gebäuden im Ortskern.Die Gemeinde liegt verkehrsgünstig, sodass Sie sowohl die umliegenden Städte wie Leer und Weener als auch die größeren Städte wie Emden und Oldenburg gut erreichen können.
Ausstattung:
Energieausweis:
- A+
 - A
 - B
 - C
 - D
 - E
 - F
 - G
 - H
 
- Baujahr:
 - 1974
 - Endenergiebedarf:
 - 245,9 kWh/(m²a)
 - Energieausweis:
 - Bedarfsausweis
 - Energieeffizienzklasse:
 - G
 - Energieausweis gültig bis:
 - 23.08.2034
 - wesentlicher Energieträger:
 - Gas
 - Baujahr lt. Energieausweis:
 - 1974
 
Ausstattungsbeschreibung:
Highlights:- überdachte Terrasse
- gepflegter Garten
- Gartenteich
- Heizung 2021 erneuert
- Garage
- Carport
- Werkstatt
- Gäste-WC
- Sauna
- ruhige Lage
- Keller
- Dachboden
Sonstige Angaben:
** BITTE SCHICKEN SIE UNS EINE E-MAIL, DAMIT WIR IHRE ANFRAGE BERÜCKSICHTIGEN KÖNNEN ! **Natalie Blanke
RE/MAX Lizenzmaklerin
Immobilienkauffrau IHK
selbstständige Immobilienmaklerin
Tel.: 0491 99 75 68 - 21
Mobil: 0160 50 63 986
E-Mail: natalie.blanke@remax.de
Provision: 4,17 % vom Kaufpreis inkl. 19% MwSt.
Impressum:
Berufsaufsichtsbehörde:nach § 34c GewO: IHK für Ostfriesland und Papenburg, Postfach 1752, 26697 Emden
Steuernummer: 60/104/00957
Informationen zur Online-Streitbeilegung: Die Europäische Kommission wird ab dem ersten Quartal 2016 eine Plattform zur Online-Streitbeilegung (sog. „OS-Plattform") bereitstellen. Diese finden Sie unter http://ec.europa.eu/consumers/odr/

										


























