Charmantes Einfamilienhaus in Leer-Heisfelde * Grundstück 1161 qm * 2 Terrassen * Ebenerdig *
Beschreibung:
Baujahr: 1964Anbau 1970
Heizung 2000
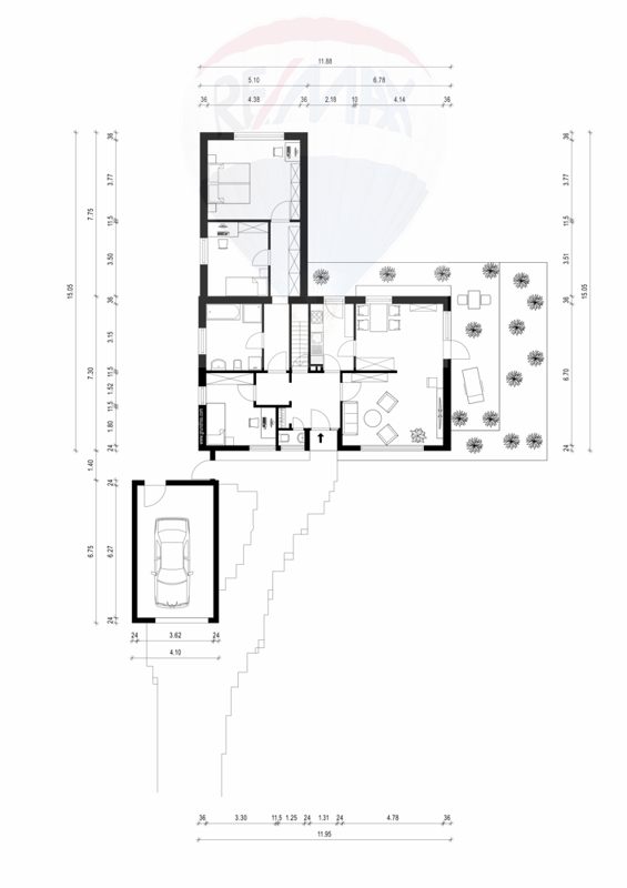
- Wohnzimmer: ca. 18,25 qm
- Esszimmer: ca. 13,21 qm
- Küche: ca. 7,76 qm
- Diele: ca. 7,33 qm
- WC: ca. 1,142 qm
- Einbaudiele: ca. 0,62 qm
- Diele 2: ca. 2,71 qm
- Zimmer 1: ca. 11,77 qm
- Diele 3: ca. 10,627 qm
- Bad: ca. 9,00 qm
- Zimmer 2: ca. 8,73 qm
- Schlafzimmer: ca. 16,73 qm
- Keller: ca. 14,45 qm
- Terrasse Küche: ca. 15.86 qm
- Überdachte Terrasse Wohnzimmer: ca. 14,47 qm
Lagebeschreibung:
Leer (Ostfriesland) ist die Kreisstadt des Landkreises Leer in Niedersachsen und eine selbständige Gemeinde. Mit 35.663 Einwohnern ist sie nach Emden und Aurich die drittgrößte Stadt Ostfrieslands. Leer, ist ein Ort, in dem Geschichte, Moderne und Wohnen in perfekter Harmonie verschmelzen. Leer bietet Lebensqualität und Attraktivität.Entdecken Sie das Potenzial dieses charmanten Einfamilienhauses in schöner Lage von Leer- Heisfelde, Ostfriesland! Auf einem großzügigen Grundstück von 1161 Quadratmetern bietet dieses 107 Quadratmeter große Haus eine einzigartige Gelegenheit zur individuellen Gestaltung. Verwirklichen Sie Ihre Wohnträume in einer schönen Umgebung – ein gemütliches Zuhause wartet darauf, von Ihnen zum Leben erweckt zu werden!
Grundschule: ca. 550m
Realschule: ca. 2,4km
Gymnasium: ca. 2,5km
Hauptschule: ca. 1,5km
Kindergarten: ca. 450m
Arzt: ca. 550m
Tanken: Aral ca. 300m
Krankenhaus: ca. 1,9km
Einkaufen: Lidl ca. 550m , Multi ca. 1,1km
Bahnhof: ca. 2,5km
Bus: 270m
Autobahn: ca. 2,0km
Orte:
Oldenburg ca. 64,3km
Bad Neuschanz 26,5km
Freizeit:
De Kiekkaaste ca. 34,4 km, Miniaturland ca. 4,1km ,
Hallenbad ca. 2,0km , Fußball Platz ca. 450m
Ausstattung:
Energieausweis:
- A+
- A
- B
- C
- D
- E
- F
- G
- H
- Baujahr:
- 1964
- Endenergiebedarf:
- 434,3 kWh/(m²a)
- Energieausweis:
- Bedarfsausweis
- Energieeffizienzklasse:
- H
- Energieausweis gültig bis:
- 19.02.2034
- wesentlicher Energieträger:
- Gas
- Baujahr lt. Energieausweis:
- 1964
Ausstattungsbeschreibung:
Highlights :- Ebenerdig
- Überdachte Terrasse
- Toller Grundriss
- Garage mit elektrischem Tor
- Schön gestalteter Garten
- Großes Grundstück
- Parkett im Wohnzimmer
- Klasse Siedlung von Leer
- Dachboden ausbaufähig
Sonstige Angaben:
**** BITTE SCHICKEN SIE UNS EINE E-Mail, DAMIT WIR IHRE ANFRAGE BERÜCKSICHTIGEN KÖNNEN !!!! ****Agnieszka Jaroszewicz
Immobilienmaklerin
Tel.: 0491 997568-22
Mobil: 0157 38843445
E-Mail: agnieszka.jaroszewicz(at)remax.de
Provision: 4,17 % vom Kaufpreis inkl. 19% MwSt.
Die hier vereinbarte Maklerprovision (Courtage) ist NICHT verhandelbar!
Impressum:
Berufsaufsichtsbehörde:nach § 34c GewO: IHK für Ostfriesland und Papenburg, Postfach 1752, 26697 Emden
USt.ID: 60/120/16895
Informationen zur Online-Streitbeilegung: Die Europäische Kommission wird ab dem ersten Quartal 2016 eine Plattform zur Online-Streitbeilegung (sog. „OS-Plattform") bereitstellen. Diese finden Sie unter http://ec.europa.eu/consumers/odr/ Unsere E-Mail Adresse lautet: agnieszka.jaroszewicz@remax.de

































