* Sehr schönes Einfamilienhaus * Nahe Papenburg * Traumaussicht hinten raus *
Beschreibung:
+++ Herzlich Willkommen zu Hause +++Ein tolles Einfamilienhaus in Westoverledingen, Ortsteil Völlen, wo sehr viel gemacht wurde!
Das Baujahr ist 1997 und wurde erbaut auf einem Grundstück von 621 m², mit einer Wohnfläche von ca. 125 m² und einer Nutzfläche von ca. 45 m².
Modernisiert wurde einiges, wie z.B. die Innentüren im EG, neue E-Geräte in der Küche, komplett eingezäunt etc.
Man kann direkt einziehen und sich wohlfühlen!
Auf dem Dach befindet sich eine Photovoltaikanlage, diese ist momentan nicht in Betrieb.
Das Einfamilienhaus ist auch teilbar zu einem Zweifamilienhaus, denn die Anschlüsse für die Küche liegen bereits im Dachgeschoss bereit.
Weitere Details zur Ausstattung in den Highlights.
Nun zum Raumprogramm:
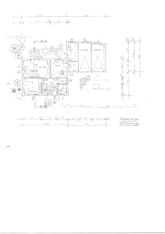
Erdgeschoss
- Flur: ca. 12,36 m²
- Bad: 4,56 m²
- Abstellraum: ca. 2,62 m²
- Küche: ca. 14,63 m²
- Wohnzimmer: ca. 23,39 m²
- Schlafen: ca. 13,91 m²
- Windfang: ca. 4,18 m²
- HWR: ca. 8,57 m²
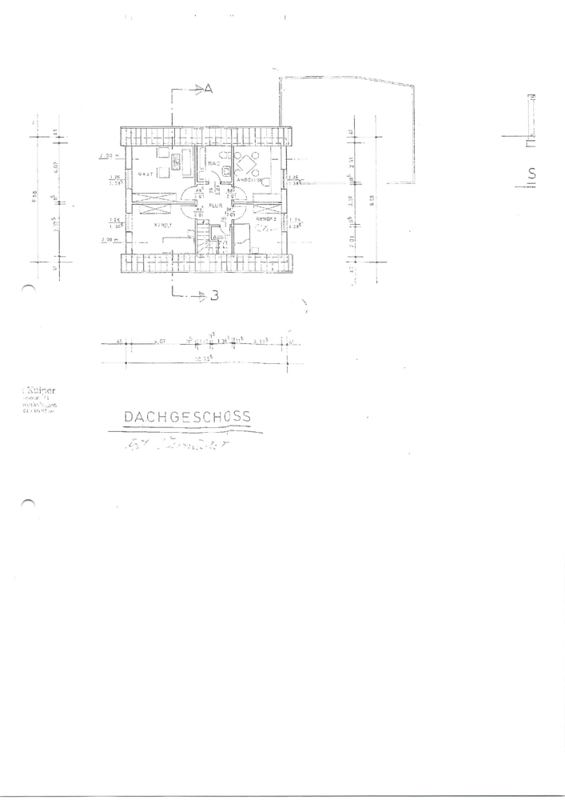
Dachgeschoss
- Flur: ca. 7,04 m²
- Abstellraum/Heizung: ca. 1,48 m²
- Kind 2: ca. 9,12 m²
- Arbeiten: ca. 10,03 m²
- Bad: ca. 4,87 m²
- Gast;: ca. 13,03 m²
- Kind 1: ca. 11,85 m²
Angaben zum Energieausweis:
- Art: Verbrauchsausweis
- Gültig bis: 30.05.2034
- Baujahr: 1997
- Endenergieverbrauch: 124,9 kWh (m²*a)
- Wesentlicher Energieträger: Gas
- Energieeffiziensklasse: D
Lagebeschreibung:
Dieses Objekt befindet sich in Westoverledingen, Ortsteil Völlen.Zu Völlen gehören noch die Ortschaften Völlenerfehn und Völlenerkönigsfehn. Im Jahr 2001 lebten in der Ortschaft insgesamt 5242 Einwohner. Begrenzt wird Völlen östlich von Völlenerfehn, westlich von der Ems, südlich von Papenburg und nördlich von Mittling-Mark. Nach Papenburg sind es etwa 3 Kilometer und zur Autobahn 31 im Westen sind es sechs Kilometer.
Ausstattung:
Energieausweis:
- A+
 - A
 - B
 - C
 - D
 - E
 - F
 - G
 - H
 
- Baujahr:
 - 1997
 - Endenergieverbrauch:
 - 124,9 kWh/(m²a)
 - Energieausweis:
 - Verbrauchsausweis
 - Energieeffizienzklasse:
 - D
 - Energieausweis gültig bis:
 - 30.05.2034
 - wesentlicher Energieträger:
 - Gas
 - Baujahr lt. Energieausweis:
 - 1997
 
Ausstattungsbeschreibung:
+++ Highlights +++- Traumsicht hinten raus
- Sonnenuntergang jeden Tag genießen
- Schiffe der Meyer Werft können bei Überführung vom Garten aus begutachtet werden
- Nahe Papenburg
- Fußbodenheizung in Küche, Flur, Bad unten, sowie Bad oben
- 2 neue Fenster Bad oben & Waschraum
- Heizung aus 2014, EWE Wärme-Plus
- Küche ca. 6 Jahre alt, E-Geräte ca. 3 Jahre alt (Backofen & Spülmaschine)
- Neue Innentüren im Erdgeschoss
- Garten neu angelegt
- 1 Garagentor elektr.
- oben Küche möglich
- ca. 40 m² überdachte Terrasse
- Mähroboter (optional)
- Pool (optional)
Sonstige Angaben:
**** BITTE SCHICKEN SIE UNS EINE E-Mail, DAMIT WIR IHRE ANFRAGE BERÜCKSICHTIGEN KÖNNEN !!!! ****Christian Tammen
RE/MAX Immo-Team
geprüfter Immobilienmakler IHK
nach § 34c GewO
Tel.: 04961/ 77 909-19
E-Mail: christian.tammen@remax.de
Facebook & Instagram: Immobilien Tammen
Provision: 3,57 % vom Kaufpreis inkl. MwSt.
Impressum:
Vertretungsberechtigter: Christian Tammen
Genehmigung nach § 34 c Abs. 1 1 Satz 1 Nr. 1 GewO
Berufsaufsichtsbehörde: IHK für Ostfriesland und Papenburg, Postfach 1752, 26697 Emden
USt.ID: 053/144/01890
Die Europäische Kommission stellt eine Plattform zur Online-Streitbeilegung (OS) bereit: http://ec.europa.eu/consumers/odr
Wir sind nicht verpflichtet und bereit, an einem Streitbeilegungsverfahren teilzunehmen.

										




























