* Einmaliges Liebhaberstück auf großem Grundstück * Ruhige Lage * Viele Möglichkeiten *
Beschreibung:
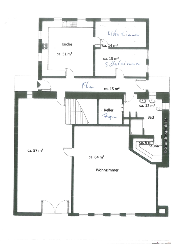
Aufteilung Erdgeschoss:Wohnzimmer: ca. 64qm
Küche: ca. 31qm
Flur: ca. 15qm
Schlafzimmer: ca. 15qm
Wohnzimmer: ca. 14qm
Bad: ca. 12qm
Sauna: ca. 6qm
Aufteilung Obergeschoss:
Schlafzimmer: ca. 36qm
Flur: ca. 24,4qm
Schlafzimmer: ca.15qm
Schlafzimmer: ca. 13qm
Flur: ca. 9,08qm
Flur: ca. 2,7 qm
WC: ca. 3qm
Nutzflächen:
Keller: ca. 7qm
Werkstatt: ca. 57qm
Angaben zum Energieausweis:
- Art: Bedarfsausweis
- Gültig bis: 22.02.2032
- Endenergieverbrauch: 106,2 kWh (m²*a)
- Wesentlicher Energieträger: Gas
- Energieeffiziensklasse: D
Lagebeschreibung:
Rhauderfehn ist eine Gemeinde im ostfriesischen Landkreis Leer in Niedersachsen. Der Sitz der Gemeindeverwaltung ist in Westrhauderfehn. Mit 18.303 Einwohnern ist sie die viertgrößte Kommune des Landkreises Leer. Diese verteilen sich auf rund 103 Quadratkilometer.Rhauderfehn hat eine sehr gute Infrastruktur mit allen Schulen, Kindergärten, sowie allen Ärzten und sämtlichen Geschäften des täglichen Lebens (wie Aldi, Lidl, Combi und Baumärkte)
Weitere Infos finden Sie auch auf der Internetseite der Gemeinde www.Rhauderfehn.de.
Ausstattung:
Energieausweis:
- A+
 - A
 - B
 - C
 - D
 - E
 - F
 - G
 - H
 
- Endenergiebedarf:
 - 106,2 kWh/(m²a)
 - Energieausweis:
 - Bedarfsausweis
 - Energieeffizienzklasse:
 - D
 - Energieausweis gültig bis:
 - 22.02.2032
 - wesentlicher Energieträger:
 - Gas
 - Baujahr lt. Energieausweis:
 - 1900
 
Ausstattungsbeschreibung:
Highlights:- schicke Galerie
- Bibliothek
- Sauna
- Gas-Heizung Warmwasserspeicher 800 Liter 5 Kollektoren
- Holzofen
- Bäckerhäuschen
- Kläranlage 4 Kammersystem 2014 neu
- wasserführender Holz-Stangenofen in der Küche (heizt das ganze Haus)
- Grundwasserpumpe
- Natur-Schwimmteich ca. 6x9 m
- Werkstatt ca. 57 qm (aufgemauert, mit Holz verkleidet)
- Baujahr nicht klar, irgendwann 19. Jahrhundert
- Dach erneuert 2020,Dämmung,Folie,Latten,Pfannen
- 5 Dachfenster neu
- oben Holzboden
- unten alles gefliest
- Fenster, teilweise neu
- 3 Carport Stellplätze (aufgemauert, mit Holz verkleidet)
- Regenrückhaltebecken
- Stall für Hühner etc.
Sonstige Angaben:
**** BITTE SCHICKEN SIE UNS EINE E-Mail, DAMIT WIR IHRE ANFRAGE BERÜCKSICHTIGEN KÖNNEN !!!! ****Christian Tammen
RE/MAX Immo-Team
Immobilienmakler nach § 34c GewO
Tel.: 0491/997568-19
E-Mail: christian.tammen@remax.de
Provision: 4,17 % vom Kaufpreis inkl. MwSt.
Impressum:
Vertretungsberechtigter: Hartwig Leemhuis
Genehmigung nach § 34 c Abs. 1 1 Satz 1 Nr. 1 GewO
Berufsaufsichtsbehörde: IHK für Ostfriesland und Papenburg, Postfach 1752, 26697 Emden
USt.ID:DE 246581814
Die Europäische Kommission stellt eine Plattform zur Online-Streitbeilegung (OS) bereit: http://ec.europa.eu/consumers/odr
Wir sind nicht verpflichtet und bereit, an einem Streitbeilegungsverfahren teilzunehmen.

										





































