Referenz Doppelhaushälfte - Kauf - Bunde

* Wie neu * 2 Bäder * 2 Terrassen * Top Lage * Top Ausstattung *

Bunde
Objektart
Haus
Objekttyp
Doppelhaushälfte
Vermarktungsart
Kauf
PLZ
26831
Ort
Bunde
Zimmer
5
Schlafzimmer
3
Badezimmer
2
Wohnfläche
131 m²
Grundstück
329 m²
Preis auf Anfrage
Nein
vermarktungsstatus
Referenz

Beschreibung:

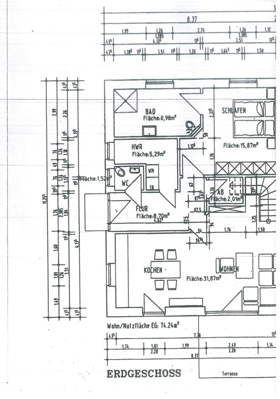
Aufteilung Erdgeschoss:

Kochen/Essen/Wohnen: ca. 31 qm
Schlafzimmer: ca. 16 qm
Badezimmer: ca. 9 qm
Gäste WC: ca. 1,23 qm
HWR: ca. 5,2 qm
Abstellraum: ca. 2 qm
Flur: ca. 8,6 qm
Terrasse Nord: ca. 26 qm
Terrasse Süd: ca. 25 qm

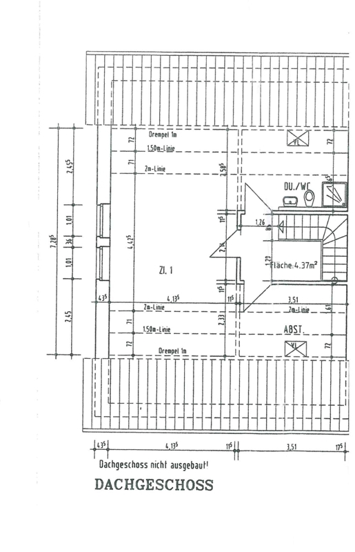
Obergeschoss Aufteilung:

Zimmer: ca. 7,9 qm
Schlafzimmer: ca.23,5 qm
Ankleide: ca. 7 qm
Duschbad/Heizung: ca. 8,5 qm
Flur: ca. 3,8 qm


Nutzflächen:
Carport: ca. 13 qm
Geräteraum: ca. 12 qm


Auffahrt: ca. 80 qm

Lagebeschreibung:

Bunde ist eine Einheitsgemeinde im ostfriesischen Landkreis Leer in Niedersachsen. Bunde liegt im Rheiderland, einer der vier historischen Landschaften des Landkreises Leer. Die Gemeinde liegt am Dollart, einer Bucht der Nordsee, und hat als einzige ostfriesische Kommune eine Landgrenze zu den Niederlanden.
Quelle: Wikipedia

Ausstattung:

Energieausweis:

  • A+
  • A
  • B
  • C
  • D
  • E
  • F
  • G
  • H
0
30
50
75
100
130
160
200
250
>250
Baujahr:
2013
Endenergiebedarf:
81,3 kWh/(m²a)
Energieausweis:
Bedarfsausweis
Energieeffizienzklasse:
C
Energieausweis gültig bis:
02.02.2032
wesentlicher Energieträger:
Gas
Baujahr lt. Energieausweis:
2013

Ausstattungsbeschreibung:

***Highlights***

- Baujahr 2013
- Fußbodenheizung
- 2 Bäder
- Carport
- Geräteraum
- elektrische Jalousien
- 2 Terrassen
- uneinsehbar
- pflegeleicht
- ausgebauter Dachboden
- kann mit Gardinen übernommen werden

Sonstige Angaben:

**** BITTE SCHICKEN SIE UNS EINE E-Mail, DAMIT WIR IHRE ANFRAGE BERÜCKSICHTIGEN KÖNNEN !!!! ****

Christian Tammen
RE/MAX Immo-Team
Immobilienmakler nach § 34c GewO


Tel.: 0491/997568-19

E-Mail: christian.tammen@remax.de

Provision: 3,57 % vom Kaufpreis inkl. MwSt.




Impressum:
Vertretungsberechtigter: Hartwig Leemhuis
Genehmigung nach § 34 c Abs. 1 1 Satz 1 Nr. 1 GewO
Berufsaufsichtsbehörde: IHK für Ostfriesland und Papenburg, Postfach 1752, 26697 Emden
USt.ID:DE 246581814

Die Europäische Kommission stellt eine Plattform zur Online-Streitbeilegung (OS) bereit: http://ec.europa.eu/consumers/odr
Wir sind nicht verpflichtet und bereit, an einem Streitbeilegungsverfahren teilzunehmen.
Jeder Lizenznehmer ist ein rechtlich eigenständiges Unternehmen und handelt auf eigene Rechnung und Verantwortung.