Referenz Einfamilienhaus - Kauf - Bunde

* Top Lage * technisches Highlight * sehr großzügig * unverbaute Rücksicht *

Bunde
Objektart
Haus
Objekttyp
Einfamilienhaus
Vermarktungsart
Kauf
PLZ
26831
Ort
Bunde
Zimmer
6
Schlafzimmer
3
Badezimmer
2
Wohnfläche
235 m²
Grundstück
921 m²
Preis auf Anfrage
Nein
vermarktungsstatus
Referenz

Beschreibung:

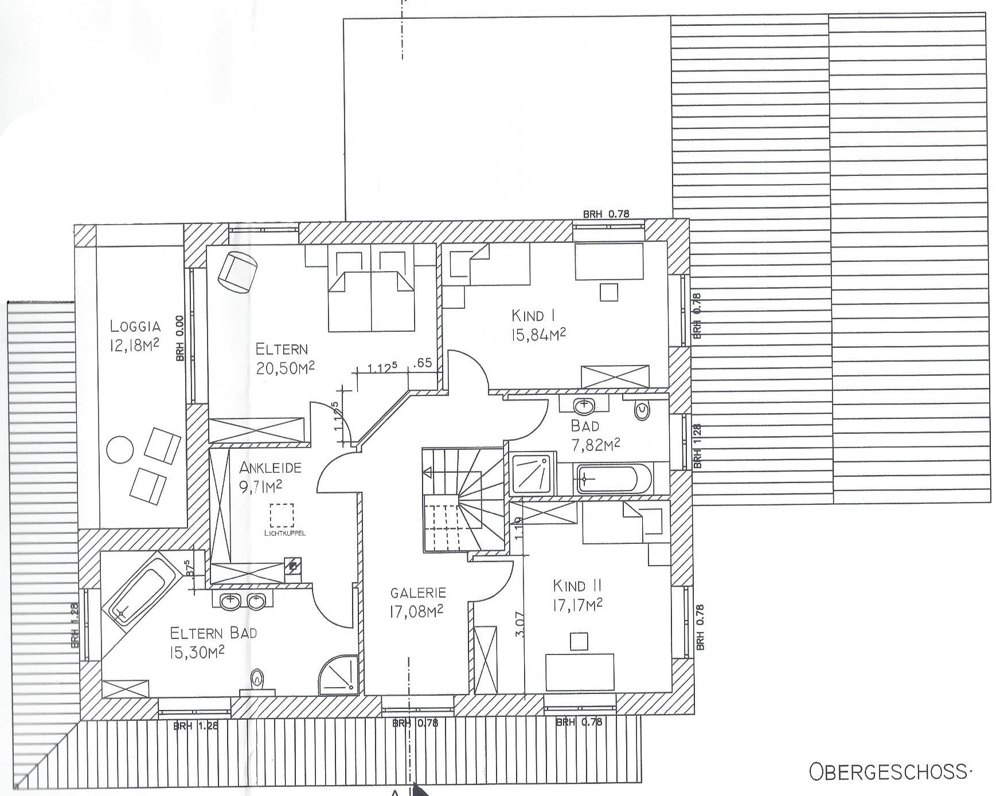
Raumprogramm

Erdgeschoss:
Wohnen: 42,70 m²
Küche: 26,18 m²
HWR: 8,51 m²
Arbeiten: 18,78 m²
WC: 3,76. m²
Diele gesamt: 20,37 m²
überdachte Terrasse: 30,74 m²
Abstellraum: 18,65 m²
Heizungsraum: 6,76 m²


Obergeschoss:

Galerie: 17,61 m²
Eltern: 21,13 m²
Ankleide: 10,01 m²
Bad Eltern: 15,77 m²
Kind I: 16,33 m²
Kind II: 17,71 m²
Bad Kinder: 8,06 m²




Angaben zum Energieausweis:
- Art: Bedarfsausweis
- Gültig bis: 06.2017
- Endenergiebedarf: 14,5 kWh (m²*a)
- Wesentlicher Energieträger: Erdwärme
- Energieeffiziensklasse: A+

Lagebeschreibung:

Diese traumhafte Immobilie befindet sich in einer sehr tollen Lage in Bunde. Kindergarten, Grundschule und Oberschule sind im Umkreis von zwei Kilometern.
Lebensmittelgeschäfte und Ärzte sind ebenfalls in nur wenigen Minuten zu erreichen.

Bunde ist eine Einheitsgemeinde im ostfriesischen Landkreis Leer in Niedersachsen. Bunde liegt im Rheiderland, einer der vier historischen Landschaften des Landkreises Leer. Die Gemeinde liegt am Dollart, einer Bucht der Nordsee, und hat als einzige ostfriesische Kommune eine Landgrenze zu den Niederlanden.
Quelle: Wikipedia

Ausstattung:

Energieausweis:

  • A+
  • A
  • B
  • C
  • D
  • E
  • F
  • G
  • H
0
30
50
75
100
130
160
200
250
>250
Baujahr:
2009
Endenergiebedarf:
14,5 kWh/(m²a)
Energieausweis:
Bedarfsausweis
Energieeffizienzklasse:
A+
Energieausweis gültig bis:
01.06.2017
wesentlicher Energieträger:
Erdwärme
Baujahr lt. Energieausweis:
2009

Ausstattungsbeschreibung:

***Highlights***

- Ausstattung des Hauses im gehobenen Standard
- Whirlpool
- EIB/KNX System (Smart Home), worüber u.a. die Fußbodenheizung im gesamten Haus gesteuert werden kann
- Netzwerkverteilung im gesamten Haus
- unverbaute Rücksicht
- Fußbodenheizung im gesamten Haus
- passive Kühlung im gesamten Haus
- sämtliche Fenster mit elektrischen Jalousien ausgestattet
- sämtliche Fenster dreifach verglast mit Widerstandsklasse 2
- Niedrigenergiehaus KfW 55
- Erdwärme
- 5 Solarfelder
- automatische Wohnraumbelüftung (mit Wärmetauscher)
- Kamin
- Anschlüsse für einen wasserführenden Kaminofen vorhanden
- große überdachte Terrasse
- großer Garten
- Geräteschuppen
- Doppelcarport
- Anbau mit WC
- Dachboden doppelt isoliert
- Internetleitung 250 mb

Sonstige Angaben:

**** BITTE SCHICKEN SIE UNS EINE E-Mail, DAMIT WIR IHRE ANFRAGE BERÜCKSICHTIGEN KÖNNEN !!!! ****

Andrea Sievers
RE/MAX Immo-Team
Immobilienmaklerin nach § 34c GewO


Tel.: 04961 77909-15
Mobil: 0175 8648112
E-Mail: andrea.sievers@remax.de

Provision: 4,17 % vom Kaufpreis inkl. 19% MwSt.


Impressum:
Vertretungsberechtigter: Hartwig Leemhuis
Genehmigung nach § 34 c Abs. 1 1 Satz 1 Nr. 1 GewO
Berufsaufsichtsbehörde: IHK für Ostfriesland und Papenburg, Postfach 1752, 26697 Emden
USt.ID:DE 246581814

Die Europäische Kommission stellt eine Plattform zur Online-Streitbeilegung (OS) bereit: http://ec.europa.eu/consumers/odr
Wir sind nicht verpflichtet und bereit, an einem Streitbeilegungsverfahren teilzunehmen.
Jeder Lizenznehmer ist ein rechtlich eigenständiges Unternehmen und handelt auf eigene Rechnung und Verantwortung.