*VERMIETET*
Beschreibung:
Bei der hier angebotenen Immobilie handelt Einfamilienhaus in ruhiger Lage. Im Erdgeschoss bietet die Immobilie ein lichtdurchflutetes Wohnzimmer mit Zugang zur Terrasse. Im Erdgeschoss befinden sich im weiteren das Badezimmer und die Küche.Im Obergeschoss sind eine Toilette und 5 Schlafzimmer.
Der Kellerbereich könnte als Trockenraum genutzt werden.
Für die Energieversorgung ist der Mieter selbst zuständig.
Lagebeschreibung:
Weener ist eine Kleinstadt in Ostfriesland im Nordwesten des deutschen Landes Niedersachsen. Es ist die einzige Stadt der historischen Region Rheiderland und erstreckt sich linksseits der Ems. Politisch gehört Weener seit 1932 zum Landkreis Leer und war vorher die Kreisstadt des Kreises Weener, der mit dem Rheiderland nahezu gleich ist.Weener hat 15.578 Einwohner auf 81,24 Quadratkilometer Fläche. In der Kernstadt Weener leben mit rund 6700 Einwohnern knapp 43 % aller Weeneraner. Die Stadt ist durch Eingemeindungen im Jahr 1973 stark gewachsen. 4,4 % der Einwohner der grenznahen Stadt sind Niederländer.
Diese Immobilie steht am Ortsrand von Weener. Über die Autobahn A31 besteht eine sehr gute Verkehrsanbindung in Richtung Niederlande, Leer oder Oldenburg/ Bremen, Rhein-/Ruhrgebiet und zur Nordsee.
Ausstattung:
Energieausweis:
- A+
 - A
 - B
 - C
 - D
 - E
 - F
 - G
 - H
 
- Baujahr:
 - 1967
 - Endenergiebedarf:
 - 243,6 kWh/(m²a)
 - Energieausweis:
 - Bedarfsausweis
 - Energieeffizienzklasse:
 - G
 - Energieausweis gültig bis:
 - 21.09.2030
 - wesentlicher Energieträger:
 - Gas
 - Baujahr lt. Energieausweis:
 - 1967
 
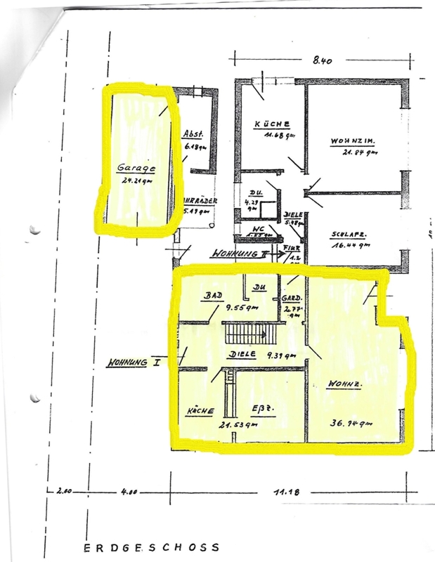
Ausstattungsbeschreibung:
Untergeschoss:Küche 21,53 m²
Bad 9,55 m²
Diele 9,39 m²
Wohnzimmer 36,94 m²
Garderobe 2,77 m²
Obergeschoss:
WC 2,50 m²
Bügelraum 12,37 m²
Schlafzimmer 1: 16,48 m²
Flur 11,18 m²
Kinderzimmer 14,95 m²
Schlafzimmer 2: 17,22 m²
Jugendzimmer mit Loggia 26,88 m²
Loggia 10,22 m²
Keller:
Heizung 4,32 m²
Abstellraum 4,81 m²
Hobbyraum 11,28 m²
Abstellraum 10,06 m²
Garage 24,21 m²
Fahrradunterstand (überdacht) 5,19 m²
Sonstige Angaben:
Die Kaution beträgt 2 Monats-Kaltmieten.******* BITTE SCHICKEN SIE UNS EINE E-Mail, DAMIT WIR IHRE ANFRAGE BERÜCKSICHTIGEN KÖNNEN !!!! ****
Die Einreichung einer Selbstauskunft wird vorausgesetzt.
Ihr Ansprechpartner
Joachim Bugiel
RE/MAX Immo-Team
EMAIL: joachim.bugiel(at)remax.de
Tel.: 0 49 1 - 99 75 68 16
Mobil: 0173 423 1281

										





























