* Multifunktionshalle in Bunde *
Beschreibung:
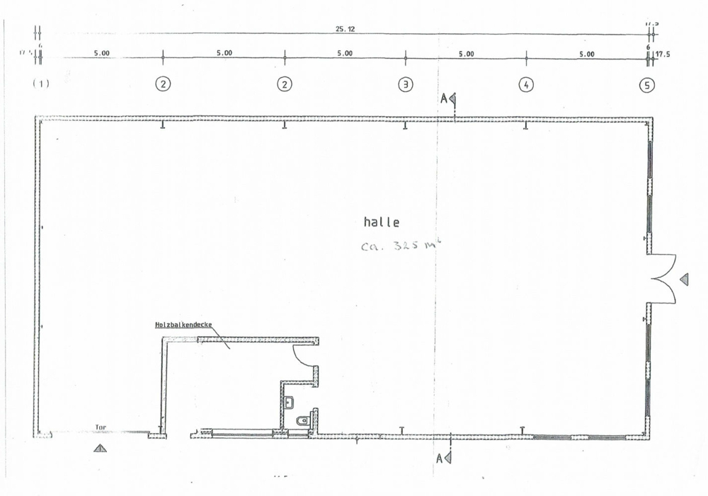
Halle in massiver Bauweise mit Büro und sanitäre Einrichtung sowie Ausstellungsfläche!- 325,00 m² Fläche insgesamt
- seitliches Rolltor
- isoliert
- ansprechende Optik
- für gehobenes Handwerk und Produktion sowie als
Lager geeignet
- mit Bürofläche
- mit Ausstellungsfläche
- Parkplätze vorhanden
- Lieferverkehr per LKW möglich
Miete: 1235,- € zzgl. MwSt.
Nebenkosten: 60,- € zzgl. Strom und Gas
Energieausweis ist in Vorbereitung!
Lagebeschreibung:
Die Gemeinde Bunde liegt im Rheiderland, einem der vier historischen Landstriche im Landkreis Leer neben dem Overledingerland, Moormerland und Lengenerland. Das Rheiderland ist die einzige Region Ostfrieslands, die sich links der Ems befindet. Die Kreisstadt Leer liegt etwa 13 Kilometer nordöstlich des Hauptortes Bunde. Die Gemeinde ist die einzige in Ostfriesland, die eine gemeinsame Landgrenze mit den Niederlanden hat.Der niederländische Ort Bad Nieuweschans (Bad Neuschanz in der Provinz Groningen) ragt in die Gemeindefläche von Bunde hinein. Im Nordwesten wird die Gemeinde Bunde von der Meeresbucht Dollart begrenzt, die zum Nationalpark Niedersächsisches Wattenmeer gehört. Bedingt durch die Grenzlage Bundes befindet sich die nächstgelegene Großstadt in den Niederlanden: Groningen liegt etwa 47 Kilometer westlich.
Ausstattung:
Energieausweis:
Sonstige Angaben:
**** BITTE SCHICKEN SIE UNS EINE E-Mail, DAMIT WIR IHRE ANFRAGE BERÜCKSICHTIGEN KÖNNEN !!!! ****Ihr Ansprechpartner
Hartwig Leemhuis Immobilien
RE/MAX Immo-Team
Hartwig Leemhuis:
Tel.: 0 49 1 - 99 75 68 - 10
Mobil: 0 15 1- 19 66 48 12
Impressum:
Vertretungsberechtigter:Hartwig Leemhuis
Berufsaufsichtsbehörde:nach § 34c GewO: IHK für Ostfriesland und Papenburg, Postfach 1752, 26697 Emden
USt.ID:DE 246581814

















