Grundstück in Wiesmoor-Mullberg* ca. 26x50 m* 1298 qm* Waldrandlage* unverbaute Rücklage*
Beschreibung:
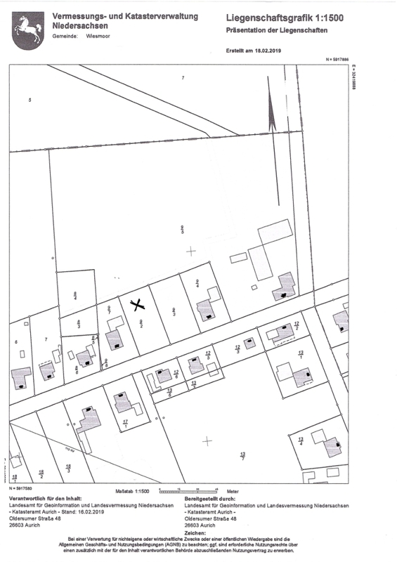
Das unerschlossene, linke Baugrundstück befindet sich in wunderschöner, ruhiger Lage am Waldrand zum Hopelser Wald in Wiesmoor-Mullberg. Es handelt sich um eine Lückenbebauung, rückwärtig unverbaut, in Nord-Nord-West-Ausrichtung mit ca. 26 m Straßenfront und ca. 50 m Tiefe. Es befindet sich auf der rechten Seite ein weiteres Baugrundstück, identischer Größe, welches ebenfalls zum Verkauf steht. Hierfür gibt es ein zweites Expose.Vorteile:
- bebaubar mit einem EFH oder MFH bis 2 Wohneinheiten
- Grundstücksfläche: ca. 26 x 50 m
- rückwärtig unverbaut
- NNW-Ausrichtung
- Lückenbebauung
- daneben liegendes Grundstück kann ebenfalls erworben werden
Lagebeschreibung:
Wiesmoor ist eine Stadt in Ostfriesland in Niedersachsen und liegt im äußeren Nordwesten Deutschlands. Die Stadt bildet den südöstlichsten Zipfel des Landkreises Aurich. Mit 13.110 Einwohnern, die auf 82,99 Quadratkilometern leben, ist Wiesmoor im Vergleich zu anderen ostfriesischen Städten nur dünn besiedelt. Mullberg ist ein Stadtteil von Wiesmoor. Er wurde ab 1914 besiedelt und zählt damit zu den drei jüngsten Ortsteilen der Stadt.Ausstattung:
Energieausweis:
Ausstattungsbeschreibung:
Hier erlebt man noch die Natur in vollen Zügen. Der Hopelser Wald liegt direkt hinter dem Grundstück und verspricht Entspannung pur. Wer sich hier ein Haus errichtet, kann mit dem Fahrrad ausgiebige Touren durch den Wald bis nach Wiesmoor unternehmen. Alle tägliche Dinge des Lebens befinden sich im Zentrum von Wiesmoor, welches nur wenige Autominuten entfernt liegt.Sonstige Angaben:
**** Bitte geben Sie bei allen Anfragen Ihre vollständigen Kontaktdaten und Ihre Telefonnummer an, damit wir Ihre Anfrage bearbeiten können! ****Ihr Ansprechpartner:
Ulrike Pläsier
RE/MAX Immo-Team
Courtage: 5,95 % vom Kaufpreis incl. MwSt.
Ulrike Pläsier:
Tel.: 0 49 1 - 99 75 68 - 12
Mobil: 0 152 - 03 48 28 85
Impressum:
Vertretungsberechtigter: Ulrike Pläsier
Berufsaufsichtsbehörde:nach § 34c GewO: IHK für Ostfriesland und Papenburg, Postfach 1752, 26697 Emden
USt.ID:DE321654216





