* Ruheoase * Gemütliches Einfamilienhaus * Sehr schöner Garten *
Beschreibung:
Ruheoase im eigenen Garten!So kann man es sagen, denn hier hat man seine Ruhe, aber trotzdem das "tägliche Leben" greifbar nahe!
Dieses klasse Einfamilienhaus wurde 2003 erbaut auf einem sehr schönen angelegten Grundstück von 1766 m².
Erneuert wurde 2024 das Bad und behindertengerecht gestaltet, sowie eine neue Brennwertherme installiert im Jahr 2023 von der Marke Weishaupt.
Eine PV-Anlage ist ebenfalls vorhanden mit einer Leistung von ca. 1,365 kWp aus 2013 und hat somit einen "alten" Vertrag mit guter Einspeisevergütung.
Ein Wintergarten befindet sich ebenfalls im hinteren Bereich am Geräteraum, dieser wurde 2015 erstellt!
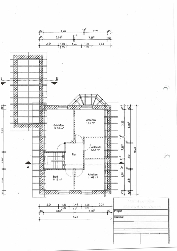
Hier nun das Raumprogramm:
Erdgeschoss
- Diele: ca. 13,18 m2
- Bad: ca. 5,7 m2
- Büro/Gäste: ca. 11 m2
- Küche: ca. 16 m2
- Wohnzimmer: ca. 25 m2
- Wintergarten: ca. 8,9 m2 (50% = 4,45 m2)
Ges.: 75,33 m2
- HWR/2. Küche: ca. 5,8 m2
- Heizungsraum: ca. 7,7 m2
- Geräte: ca. 5,9 m2
Ges.: 19,4 m2
Obergeschoss
- Flur: ca. 5,4 m2
- Eltern: ca. 14,6 m2
- Kind/Arbeiten: ca. 11,9 m2
- Ankleide: ca. 5,5 m2
- Kind/Arbeiten: ca. 11,63 m2
- Bad: ca. 8 m2
Ges.: 57,03 m2
WF: ca. 132,36 m2
NF: ca. 19,4 m
Angaben zum Energieausweis:
- Art: Verbrauchsausweis
- Gültig bis: 17.06.2035
- Baujahr: 2003
- Endenergieverbrauch: 117,5 kWh (m²*a)
- Wesentlicher Energieträger: Erdgas LL, Stückholz
- Energieeffiziensklasse: D
Lagebeschreibung:
Rhauderfehn ist eine Gemeinde im ostfriesischen Landkreis Leer in Niedersachsen. Der Sitz der Gemeindeverwaltung ist in Westrhauderfehn. Mit 18.310 Einwohnern ist sie die viertgrößte Kommune des Landkreises Leer. Diese verteilen sich auf rund 103 Quadratkilometer. Nicht zu Rhauderfehn gehört die politisch selbstständige Gemeinde Ostrhauderfehn, ebenfalls im Landkreis Leer.Der Name der Gemeinde rührt von der 1769 gegründeten Fehnsiedlung gleichen Namens her, die wiederum nach dem alten Geestdorf Rhaude im Nordwesten des Gemeindegebietes benannt ist. Neben Rhaude sind Backemoor und Collinghorst die ältesten Ortsteile. Weite Teile des Gemeindegebietes wurden im 18. und 19. Jahrhundert durch Moorkolonisten urbar gemacht. Der Ortsteil Klostermoor hingegen wurde erst im Zuge des Emslandplans ab 1951 vollkommen erschlossen. Damit ist Rhauderfehn die einzige ostfriesische Gemeinde, die am Emslandplan beteiligt war.
Wirtschaftlich ist Rhauderfehn von Landwirtschaft, Tourismus und wenigen Industriebetrieben geprägt, darunter einem Hersteller von Reißverschlüssen (Opti). Die Kommune ist in deutlichem Maße eine Auspendler-Gemeinde.
Rhauderfehn verfügt über drei mittelalterliche Kirchen. Zu weiteren historischen Bauwerken gehören Windmühlen sowie eine Vielzahl von Klappbrücken über die Fehnkanäle.
Ausstattung:
Energieausweis:
- A+
- A
- B
- C
- D
- E
- F
- G
- H
- Baujahr:
- 2003
- Endenergieverbrauch:
- 117,5 kWh/(m²a)
- Energieausweis:
- Verbrauchsausweis
- Energieeffizienzklasse:
- D
- Energieausweis gültig bis:
- 17.06.2035
- wesentlicher Energieträger:
- Erdgas leicht
- Baujahr lt. Energieausweis:
- 2003
Ausstattungsbeschreibung:
+++ Highlights +++- Ruheoase im eigenen Garten
- Sehr schöner Garten, selbst angelegt
- toller Baumbestand
- Fußbodenheizung Erdgeschoss Diele, Wohnzimmer, Küche, Bad
- Badezimmer NEU 2024
- Heizung NEU 2023 (Weishaupt)
- PV-Anlage ca. 1,365 kWp aus 2014, mit sehr guter Einspeisevergütung
- Kaminofen 7 kW mit Speckstein & Backfunktion
- Glasfaser 2023 installiert
- Einkaufsmöglichkeiten in der Nähe
Sonstige Angaben:
**** BITTE SCHICKEN SIE UNS EINE E-Mail, DAMIT WIR IHRE ANFRAGE BERÜCKSICHTIGEN KÖNNEN !!!! ****Christian Tammen
RE/MAX Immo-Team
geprüfter Immobilienmakler IHK
nach § 34c GewO
Tel.: 04961/ 77 909-19
E-Mail: christian.tammen@remax.de
Facebook & Instagram: Immobilien Tammen
Provision: 4,17 % vom Kaufpreis inkl. MwSt.
Impressum:
Vertretungsberechtigter: Christian Tammen
Genehmigung nach § 34 c Abs. 1 1 Satz 1 Nr. 1 GewO
Berufsaufsichtsbehörde: IHK für Ostfriesland und Papenburg, Postfach 1752, 26697 Emden
USt.ID: 053/144/01890



































